物件番号:11
物件データ最終更新日:2022/03/30
賃貸
武蔵新城 駅前ビルのスケルトン物件
武蔵新城駅前にある上新城センタービル1階のスケルトン物件です。
飲食店も含み、さまざまな業種の相談が可能となっております。
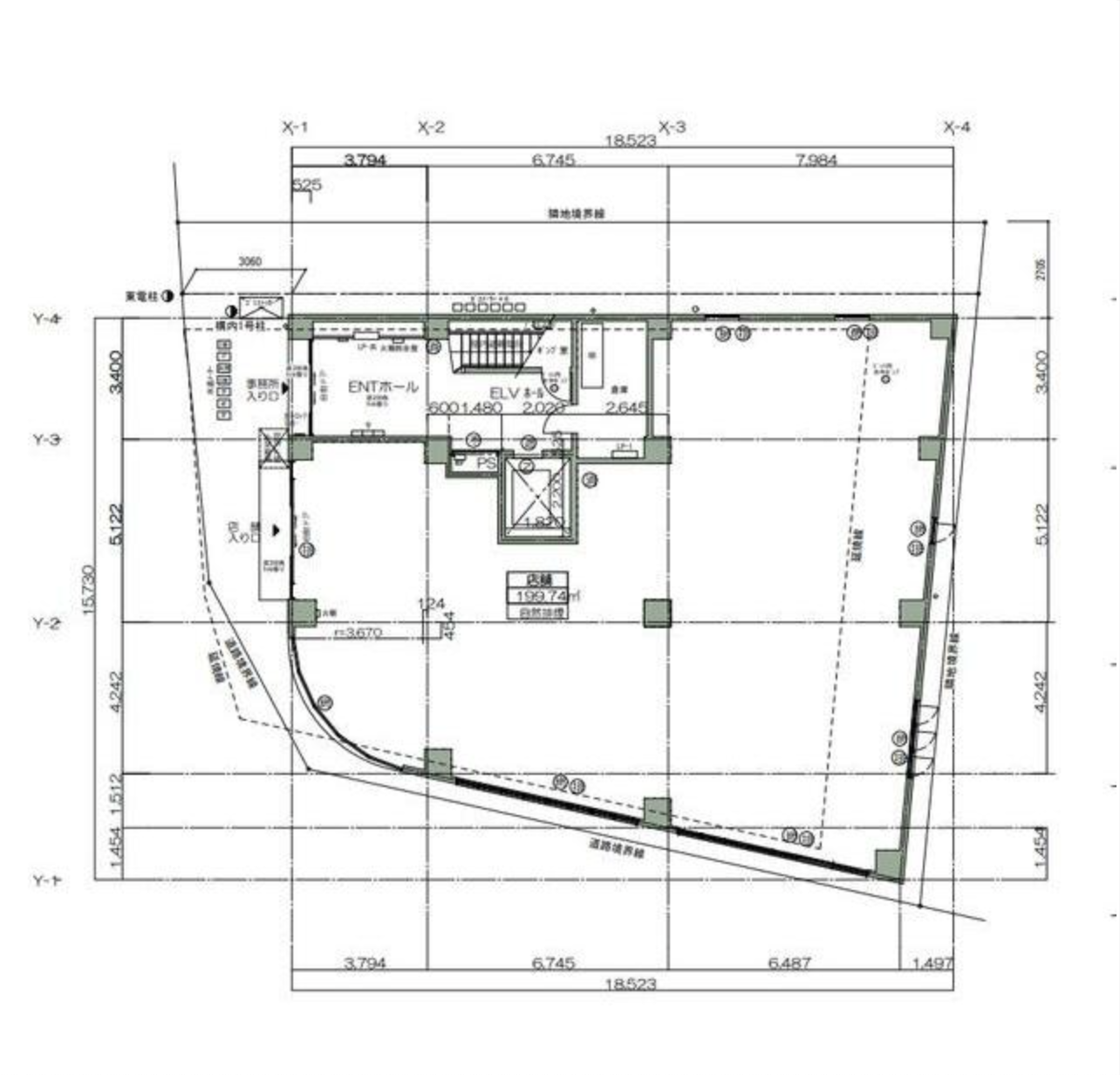
ワンフロア全てが使用可能で、中心に柱はありますが広々としたワイドな空間をつくることができます。
もちろん造作すれば細かく部屋を区切ることも可能です。
立地としては駅前であるため多くの人通りが見込めそうです。
建物の外周はガラス張りになっているため、見せ方によっては多くの方の目にとまる建物がつくれます。
武蔵新城は近年まちづくりが進んでおり、積極的に街を変えていこうと盛り上がっている地域です。
2021年のグッドデザイン賞でもその一部がエリアリノベーションとして評価され、街として居住機能だけではなく立ち寄れる場所、集える場所、働ける場所が増え、地域の人々にとって豊かなエリアに生まれ変わり始めております。
街を盛り上げるような事業をしていきたい方にとっては、ここは魅力的でおもしろみのある地域かもしれません。
- 用途
- 店舗, 事務所ビル, その他施設
- 月額賃料
- 1,650,000 円
- 共益費/管理費
- 0 円
- 敷金
- 10ヶ月
- 礼金
- 1 ヶ月
- 敷金償却
- 物件名
- 上新城センタービル
- 延床面積
- 199.74 ㎡
- エリア
- 神奈川県川崎中部(高津区・宮前区・中原区)
- 最寄駅
- JR南武線 武蔵新城駅 徒歩1分
- 所在地
- 川崎市中原区上新城2-8-7
- 築年月
- 2013年10月
- 構造規模
- RC造5階建 1階部分
- 取引形態
- 仲介
- 備考
- 飲食店可、1階ワンフロア独占利用、スケルトン、要賃貸保証加入














