物件番号:30
物件データ最終更新日:2022/04/20
賃貸
武蔵小杉 駅近ビルのワンフロア
年々人口も増え、成長している街である川崎市の武蔵小杉。
その武蔵小杉駅北口より徒歩2分の好立地の物件のご紹介です。
近年東急線の高架下再開発が行われ、そのお向かいにあるビルです。
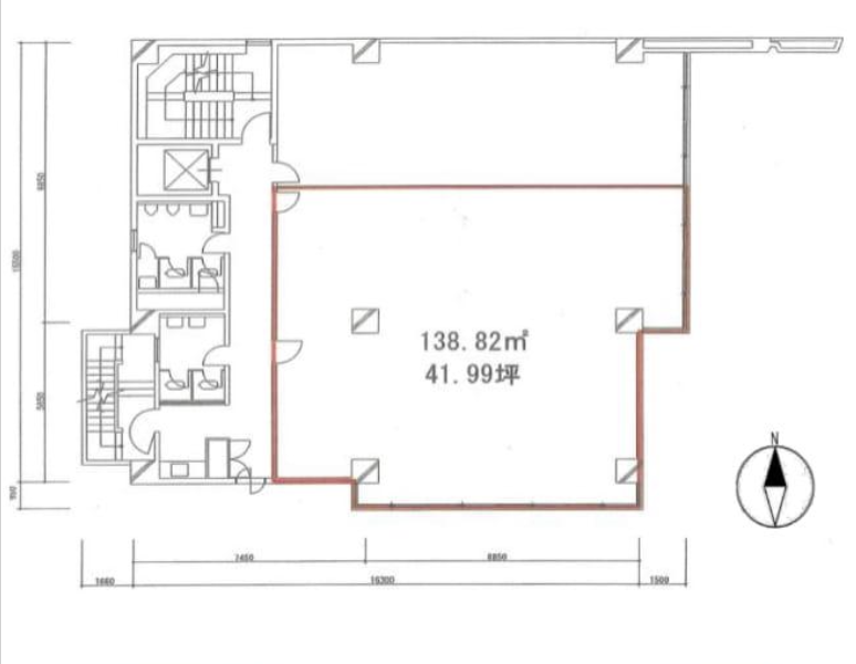
約140㎡面積がありますので、オフィスの拡大もしくは縮小を考えられている企業さんには良き立地ではないかと思いますので、ぜひ一度ご見学にいらしていただければと思います。
- 用途
- 事務所ビル, その他施設
- 月額賃料
- 579,462 円
- 共益費/管理費
- 142,766 円
- 敷金
- 12ヶ月
- 礼金
- 0 ヶ月
- 敷金償却
- 物件名
- ECS武蔵小杉ビル
- 延床面積
- 138.82 ㎡
- エリア
- 神奈川県川崎中部(高津区・宮前区・中原区)
- 最寄駅
- JR南武線 武蔵小杉駅 徒歩1分
東急東横線 武蔵小杉駅 徒歩1分
- 契約種別
- 定期建物賃貸借契約
- 所在地
- 神奈川県川崎市中原区新丸子町915-20
- 築年月
- 1984年2月
- 構造規模
- RC造7階建 4階部分
- 設備
- 個室空調、EV1基
- 駐車場
- 機械式駐車場有(現在空きなし)
- 取引形態
- 仲介
- 備考
- ・契約期間相談
・新耐震基準
・敷金相談(保証会社加入時のみ)
・保証会社加入相談有








